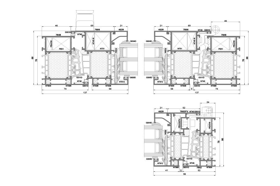
PONZIO PE78N HI
Systém PONZIO PE78 HI je osazen speciální izolační vložkou, která zvyšuje tepelně izolační vlastnosti profilu. V závislosti na umístění ve kterém je zakomponována dodatečná výplň, systém dosáhne lepší hodnoty součinitele prostupu tepla.
- konstrukční hloubka profilu 78 mm
- kování Winkhaus activPilot
- možnost vložení výplně od 23– 61mm
- široká škála dřevodekorů a odstínů RAL
- excelentní produkt v oblasti hliníkových profilů
- rámový součinitel prostupu tepla Uf = od 1,3 W/m²K
- dvě dorazová těsnění z EPDM pryže + středové těsnění
- tříkomorová konstrukce profilu s přerušením tepelného mostu 42 mm
- součinitel prostupu tepla referenčního okna* od Uw = od 0,88 W/m²K
- součinitel prostupu tepla referenčního okna ve verzi HI* od Uw = 0,74 W/m²K
* vypočteno pro referenční okna 1480 x 2180 mm


















