P-Line (by REHAU Synego MD)
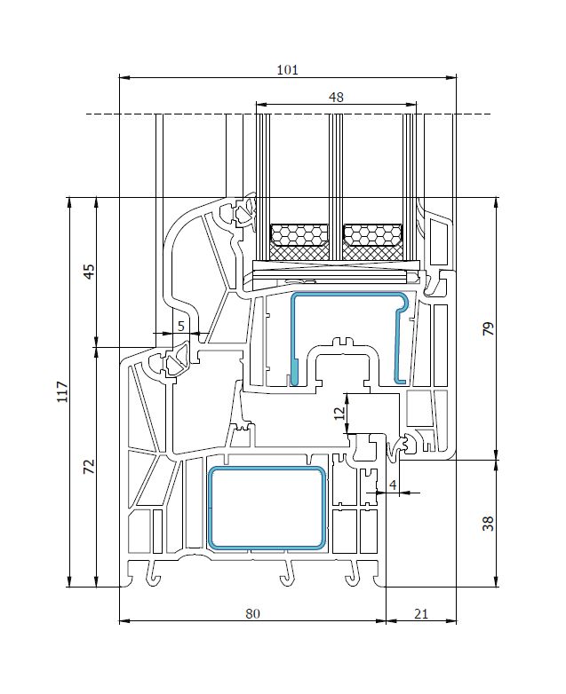
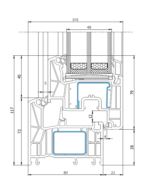
Okna řady P-line se vyznačují moderním hranatým designem a vyspělou technologií profilů německé firmy REHAU. Okna jsou vybavena spolehlivým celoobvodovým kováním německého firmy WINKHAUS se 2 bezpečnostními prvky proti vypáčení již ve standardu. Zasklení může být provedeno zasklívacími pakety až do šíře 48 mm s hodnotou Ug = 0,5 W/m2K. Nové profily řady P-line jsou ještě šetrnější k životnímu prostředí a splňují nejpřísnější ekologické požadavky s ohledem na recyklaci. Díky tomu Vám můžeme nabídnout kombinaci exkluzivního vzhledu, kvality a ceny, kterou jinde nenajdete.
- excelentní tepelná izolace celého okna Uw až 0,78 W/m2K
- akustická izolace až do Rw 45dB dle EN 14351/1(dle zasklení)
- spolehlivé německé celoobvodové kování Winkhaus activPilot
- konstrukční hloubka profilu 80 mm se středovým EPDM těsněním MD
- moderní hranaté profily se speciální povrchovou úpravou HDF pro snadnější čištění
- nejmodernější 7- mi komorová konstrukce profilů renomované německé firmy REHAU
- systém umožňuje použití předsazeného zaobleného křídla v modelové řadě elegance
- možnost provedení nulového rohového sváru P®Perfect u oken v barevném provedení
Hlavní výhody
- spolehlivost
- svar P®Perfect
- středové těsnění
- dlouhá životnost
- excelentní izolační vlastnosti
- ideální pro novostavby a nízkoenergetické stavby