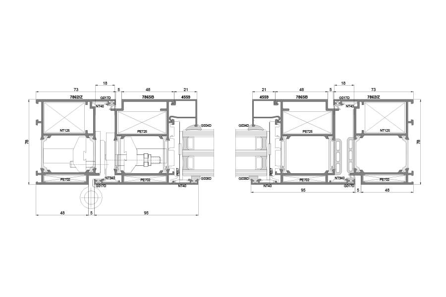
PONZIO PE78N
Nejmodernější tříkomorový tepelně izolační systém určený pro zhotovování dveřních konstrukcí s přerušeným tepelným mostem vykazuje díky 34 mm vložce a dodatečné izolaci vynikající tepelně izolační vlastnosti. Konstrukční hloubka rámu a křídla 78mm zaručuje výbornou stabilitu a tuhost profilu. Dveře vyrobené z těchto profilů se vyznačují vyspělou konstrukcí a patří k tomu nejlepšímu na trhu.
- konstrukční hloubka profilu 78 mm
- dvě dorazová těsnění z EPDM
- možnost vložení výplně od 23– 61mm
- široká škála dřevodekorů a odstínů RAL
- excelentní produkt v oblasti hliníkových profilů
- rámový součinitel prostupu tepla Uf = od 0,9 W/m²K
- tříkomorová konstrukce profilu s přerušením tepelného mostu 34 mm
- součinitel prostupu tepla referenčních dveří* od Uw = od 1,10 W/m²K
- součinitel prostupu tepla referenčních dveří ve verzi HI* od Uw = 0,93 W/m²K
* vypočteno pro referenční dveře 1230 x 2180 mm



















