PONZIO PT50
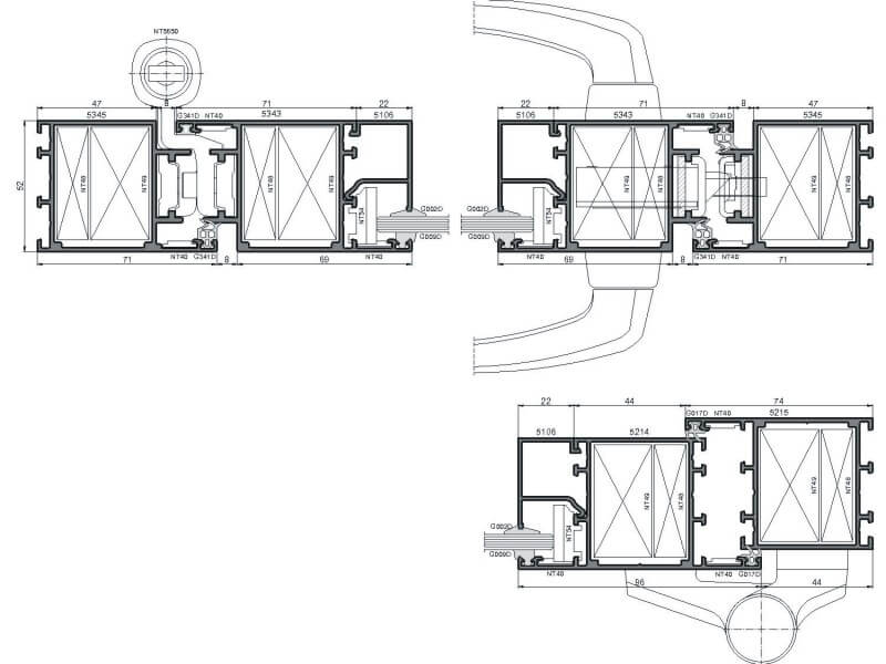
Hliníkový profilový systém bez tepelné izolace. Je určen především pro vnitřní konstrukce: vestibuly, pokladní boxy, vitríny a příčky. Systém PT50 umožňuje použití různých druhů výplní: skleněné, hliníkové panely, sendvičová výplň, nábytkové desky, sádrokartonové a polykarbonátové desky a to o tloušťce 1-40 mm. Konstrukční hloubka profilů pro rámy a křídla je 52-60mm.
- konstrukční hloubka profilu 52 mm
- možnost vložení výplně od 1 – 40mm
- kování Winkhaus activPilot
- široká škála dřevodekorů a odstínů RAL
- dvě dorazová těsnění z EPDM pryže
- nejlevnější cenová varianta ALU profilů!!!
- jednokomorová konstrukce profilu bez přerušeného tepelného mostu



















