PONZIO PE60
Systém je určený k provádění vnějších stavebních konstrukcí, které vyžadují tepelnou izolaci. Tříkomorová konstrukce s přerušeným tepelným mostem a stavební hloubkou 60mm usnadňuje fungování systému a vybízí investory k použití systému. Dodatečná komora zvyšuje tuhost, což umožňuje v PONZIO PE60 realizovat konstrukce značně větších rozměrů. Kovací drážka ve standardu „euro“ umožňuje osazení kování, které se běžně používá na oknech a balkonových dveřích z PVC či dřeva. Okna vyrobená z těchto profilů se vyznačují jednoduchostí a praktičností. Hlavní výhodou tohoto systému je cenová dostupnost.
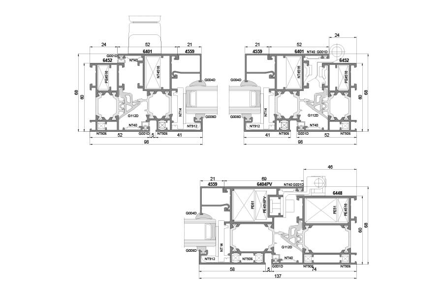
- konstrukční hloubka profilu 60 mm
- možnost vložení výplně od 10 – 51mm
- kování Winkhaus activPilot
- dvě dorazová těsnění z EPDM pryže
- široká škála dřevodekorů a odstínů RAL
- rámový součinitel prostupu tepla Uf = 2,0 – 2,2 W/m²K
- nejlevnější cenová varianta ALU profilů s tepelnou izolací!!!
- tříkomorová konstrukce profilu s přerušením tepelného mostu 24 mm



















