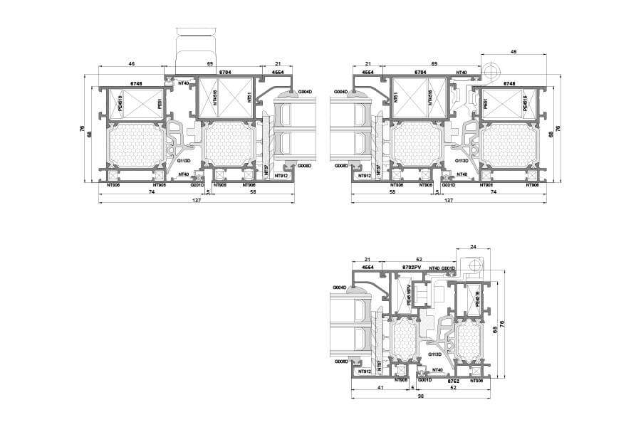
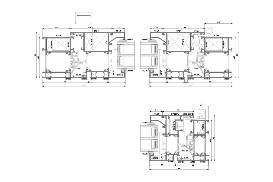
PONZIO PE68 a PE68 HI
Systém je určený k provádění vnějších stavebních konstrukcí, které vyžadují dobrou tepelnou izolaci. Tříkomorová konstrukce s přerušeným tepelným mostem vykazuje díky 32 mm vložce velmi dobré tepelně izolační vlastnosti. Dodatečná komora zvyšuje tuhost profilu a v kombinaci se stavební hloubkou 68mm umožňuje realizovat konstrukce větších rozměrů. Kovací drážka ve standardu „euro“ umožňuje osazení kování, které se běžně používá na oknech a balkonových dveřích z PVC či dřeva. Okna vyrobená z těchto profilů se vyznačují vyspělou konstrukcí a jsou dobrým kompromisem v poměru cena/výkon.
Systém PONZIO PE68 HI je osazen speciální izolační vložkou, která zvyšuje tepelně izolační vlastnosti profilu. V závislosti na umístění ve kterém je zakomponována dodatečná výplň, systém dosáhne lepší hodnoty součinitele prostupu tepla.
- konstrukční hloubka profilu 68 mm
- kování Winkhaus activPilot
- možnost vložení výplně od 18 – 59mm
- dvě dorazová těsnění z EPDM pryže
- široká škála dřevodekorů a odstínů RAL
- atraktivní cena v poměru cena/parametry
- rámový součinitel prostupu tepla Uf = od 1,5 W/m²K
- tříkomorová konstrukce profilu s přerušením tepelného mostu 32 mm
- součinitel prostupu tepla referenčního okna* od Uw = od 0,93 – 1,32 W/m²K
- součinitel prostupu tepla referenčního okna ve verzi HI* od Uw = 0,84 W/m²K
* vypočteno pro referenční okna 1480 x 2180 mm





















