PONZIO PE78N a PE78N HI
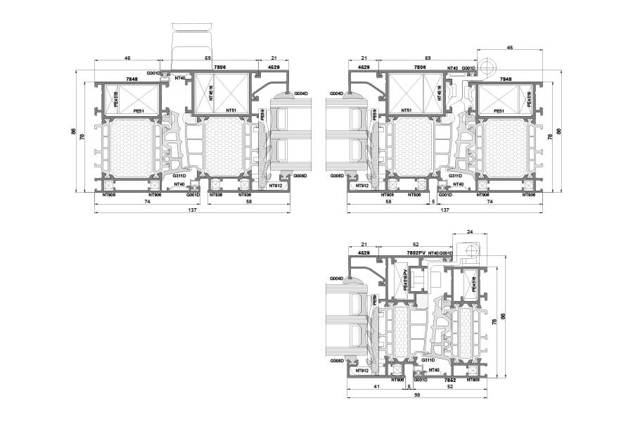
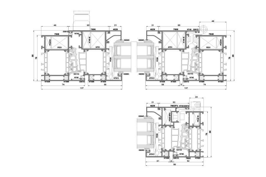
Nejvyspělejší tříkomorový tepelně izolační systém je určen pro výrobu oken s obzvláště vysokými požadavky na tepelnou izolaci a velkorozměrové konstrukční řešení. Stavební hloubka profilu rámů je 78 mm jsou použity tepelně izolační výplně o tloušťce 42 mm a dvousložkové středové těsnění. Toto konstrukční řešení se podílí na vysoké hodnotě tepelné izolace profilu. Okna vyrobená z těchto profilů se vyznačují vyspělou nejmodernější konstrukcí a patří k tomu nejlepšímu na trhu.
Systém PONZIO PE78 HI je osazen speciální izolační vložkou, která zvyšuje tepelně izolační vlastnosti profilu. V závislosti na umístění ve kterém je zakomponována dodatečná výplň, systém dosáhne lepší hodnoty součinitele prostupu tepla.
- konstrukční hloubka profilu 78 mm
- kování Winkhaus activPilot
- možnost vložení výplně od 23– 61mm
- široká škála dřevodekorů a odstínů RAL
- excelentní produkt v oblasti hliníkových profilů
- rámový součinitel prostupu tepla Uf = od 1,3 W/m²K
- dvě dorazová těsnění z EPDM pryže + středové těsnění
- tříkomorová konstrukce profilu s přerušením tepelného mostu 42 mm
- součinitel prostupu tepla referenčního okna* od Uw = od 0,88 W/m²K
- součinitel prostupu tepla referenčního okna ve verzi HI* od Uw = 0,74 W/m²K
* vypočteno pro referenční okna 1480 x 2180 mm





















